Espace propriétaire
fr

Votre recherche

Gleizé (69400)

3 pièces - 62 m²

JOLIE T3 AU COEUR DE GLEIZE

280 000 €
Ref : 1009
A propos de ce bien

Rare ! Superbe appartement T3 situé à Gleizé

Emplacement idéal, proche des commerces (supermarché, pharmacie, boulangerie, marché, tabac etc), des transports et des axes routiers

Résidence à taille humaine, récente et sécurisée

Cet appartement récent, très bien agencé et situé à l'arrière de la résidence, au calme sur le jardin vous séduira par ses prestations haut de gamme 

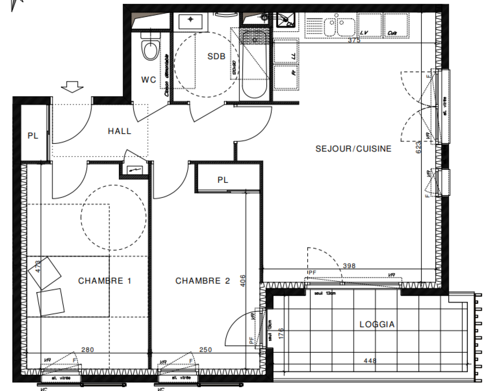
En effet ce T3 tout confort de 62 m2 vous offrira : 

- un véritable espace entrée 

- un grand séjour cuisine ouvert lumineux donnant sur un balcon 

- Une salle de bain, un WC séparé 

Prestations de qualité : nombreux rangements, logement optimisé, carrelage, baies coulissantes, WC séparé et suspendu, volets roulants éléctriques, véritable parquets dans les chambres, jardin de

copropriété, hall décoré, etc.

Profitez de tous les avantages et garanties d'un logement réalisé en 2024, disponible immédiatement, sans délai d'attente - visite sur demande

De plus, Gleizé est situé en zone B1, avantage non négligeable pour un investissement ou pour votre montage financier en résidence principale

Chauffage gaz individuel

Prix avec double stationnement

Descriptif de ce bien
Général
Code postal 69400
Nombre de chambre(s) 2
Nombre de pièces 3
Ascenseur OUI
Détails
Nb de salle de bains 1
Interphone OUI
Visiophone OUI
Balcon OUI
Nombre de garage 2
Année de construction 2024
Composition
Rez de chaussée
chambre 13 m²

chambre 11.78 m²

salon/sejour 25.05 m²

Financier
Prix de vente honoraires TTC inclus 280 000 €
Energie
DPE GES
Contacter pour ce bien
L'agence
Adresse
47 Rue André Bollier 69007 Lyon

* Champ obligatoire

Les informations recueillies sur ce formulaire sont enregistrées dans un fichier informatisé par La Boite Immo agissant comme Sous-traitant du traitement pour la gestion de la clientèle/prospects de l'Agence / du Réseau qui reste Responsable du Traitement de vos Données personnelles. La base légale du traitement repose sur l'intérêt légitime de l'Agence / du Réseau. Elles sont conservées jusqu'à demande de suppression et sont destinées à l'Agence / au Réseau. Conformément à la loi « informatique et libertés », vous disposez des droits d’accès, de rectification, d’effacement, d’opposition, de limitation et de portabilité de vos données. Vous pouvez retirer votre consentement à tout moment en contactant directement l’Agence / Le Réseau. Consultez le site https://cnil.fr/fr pour plus d’informations sur vos droits. Si vous estimez, après avoir contacté l'Agence / le Réseau, que vos droits « Informatique et Libertés » ne sont pas respectés, vous pouvez adresser une réclamation à la CNIL. Nous vous informons de l’existence de la liste d'opposition au démarchage téléphonique « Bloctel », sur laquelle vous pouvez vous inscrire ici : https://www.bloctel.gouv.fr Dans le cadre de la protection des Données personnelles, nous vous invitons à ne pas inscrire de Données sensibles dans le champ de saisie libre.
Ce site est protégé par reCAPTCHA, les Politiques de Confidentialité et les Conditions d'Utilisation de Google s'appliquent.

Découvrir nos outils